アイディ上野Ⅲ

7.5万円 管理/共益費 10,000円

東京都台東区入谷2丁目

日比谷線「入谷」駅徒歩5分

山手線「鶯谷」駅徒歩10分

つくばエクスプレス「浅草」駅徒歩14分

価格
7.5万円 管理/共益費 10,000円
間取り/面積
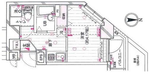
1K/16.75㎡
所在地
東京都台東区入谷2丁目
築年
2010年3月(築15年)
駐車
-
交通

日比谷線入谷」駅 徒歩5分

山手線鶯谷」駅 徒歩10分

つくばエクスプレス浅草」駅 徒歩14分

アイディ上野Ⅲの基本情報

物件名
アイディ上野Ⅲ
価格
7.5万円
管理/共益費
10,000円
築年月
2010年3月(築15年)
総戸数
-
所在地
東京都台東区入谷2丁目
交通

日比谷線入谷」駅 徒歩5分

山手線鶯谷」駅 徒歩10分

つくばエクスプレス浅草」駅 徒歩14分

アイディ上野Ⅲの詳細情報

設備条件
  • 閑静な住宅地
  • エレベーター
  • 駐輪場
  • 敷地内ごみ置き場
  • 外観タイル張り
  • CATV
  • 光ファイバー
  • オートロック
  • 宅配ボックス
  • 防犯カメラ
  • 24時間ゴミ出し可
設備(その他)
    -
駐車場/月額
-/-
用途地域
-
戸数
- / -
取引態様
仲介
備考
こちらの物件は荒川区立 第九峡田小学校まで3071m以内にあるのがポイントです。共用部にはエレベータ・敷地内ごみ置き場などが備わっておりとても充実しています。こちらの物件はマンションです。駅まで5分と、駅近でアクセスも良好な物件です。こちらのマンションでは初期費用をカードでお支払いいただけます。ご希望の地域から物件の情報をご覧いただいた後は、お気軽に当社スタッフまでお問い合わせください。お待ちしております。

アイディ上野Ⅲのコメント(おすすめポイント)

当店では、初期費用の分割、クレジットカード決済、家賃や入居日の交渉、インターネット非公開物件の情報のご紹介等どんな事でも対応致します!また、掲載物件の他にも多数物件をご紹介しております!

アイディ上野Ⅲで募集中の物件

  1. 2階

    5.06坪 (16.75㎡)

    7.5万円(14822.13円/坪)

周辺施設

  • 甲州屋の画像

    そば・うどん

    甲州屋

    1509m(19分)

  • febs coffee&scone Blucca店の画像

    ファミリーレストラン

    febs coffee&scone Blucca店

    1901m(24分)

近隣の物件

  1. 台東区蔵前3丁目

    2DK (39.60㎡)

    18.6万円

  2. 台東区東上野5丁目

    1R (23.94㎡)

    8.9万円

  3. 台東区元浅草1丁目

    1DK (32.82㎡)

    17.2万円

  4. 台東区駒形1丁目

    1DK (27.25㎡)

    13.8万円

アイディ上野Ⅲ

お気軽にお問い合わせください

無料お問い合わせ

WITH HOME(ウィズホーム)

03-6912-2377

10:00~19:00

(休:毎週水曜日(12月28日〜1月3日まで年末年始休暇))