北大塚三丁目貸家

18万円

管理 / 共益費 -

東京都豊島区北大塚3丁目27

都電荒川線「巣鴨新田」駅徒歩4分

山手線「大塚」駅徒歩7分

東武東上線「北池袋」駅徒歩15分

賃料
18万円
敷金(保証金)
2ヶ月(-)
間取り
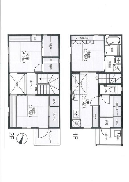
3LDK+S(納戸)
向き
-
所在地
東京都豊島区北大塚3丁目27
管理 / 共益費
-
礼金
1ヶ月
建物面積
60.86㎡
築年月
2009年9月(築16年)
交通

都電荒川線巣鴨新田」駅 徒歩4分

山手線大塚」駅 徒歩7分

東武東上線北池袋」駅 徒歩15分

物件の特徴

  • バストイレ別

  • 室内洗濯機置場

  • TVモニタ付きインターホン

  • 独立洗面台

  • 浴室乾燥機

セールスポイント

申込から契約まで来店不要で対応可能!LINE対応も承ります!

ポイント

担当者のコメント

WITH HOME 本店

当店では、初期費用の分割、クレジットカード決済、家賃や入居日の交渉、インターネット非公開物件の情報のご紹介等どんな事でも対応致します!また、掲載物件の他にも多数物件をご紹介しております!

基本情報

保証金
-
敷引 / 償却
- / -
敷金積み増し
-
間取り / 詳細
3LDK+S(納戸)
和室 4.5帖/DK 5.6帖/和室 4.5帖/和室 4.5帖/S
向き
-
建物面積
60.86㎡
バルコニー
(テラス)面積
-
階建て
2階建
建物構造
木造
築年月
2009年9月(築16年)
種別
一戸建て
保険会社 / 料金
有  火災保険  24,000円  / 2年
保証会社 / 料金
必加入 / その他
お気軽にお問い合わせください。
初回保証料:月額賃料等の●●% 月額保証料:月額賃料等の●●%  更新料:1年毎●万円 口座振替手数料(月々):●●●円 ※短期解約違約金有(●年未満の解約は賃料の●か月分)
現況
空家
入居可能時期
即時
その他条件
鍵交換代:4万円

設備条件

設備条件
  • 保証人不要 / 室内洗濯機置場 / フローリング / 都市ガス / 公営水道 / 公共下水 / 24時間換気システム / 電気有 / 照明器具付き / 駐輪場 / バイク置場あり / 耐震構造 / IHクッキングヒーター / コンロ2口以上 / 食器洗い乾燥機 / コンロ3口 / バス・トイレ別 / 浴室乾燥機 / 温水洗浄便座 / 独立洗面台 / エアコン / ウォークインシューズクロゼット / シューズボックス / CATV / 光ファイバー / TVモニタ付インターホン / 防犯カメラ / 初期費用カード決済可

その他

契約期間
2年
賃貸区分
一般
更新料
1ヶ月(新賃料)
更新事務手数料
-
総戸数
-
特優賃
-
取引態様
仲介
物件番号
99571134
管理コード
JSHOG
情報更新日
2025年12月09日
次回更新予定日
2025年12月16日
取扱会社
  • With Home(ウィズホーム)
  • 東京都豊島区巣鴨1丁目13-4 スガモプラザビルA棟 5階
  • TEL:03-6912-2377
  • 東京都知事 (1) 第109819号
備考
エリア問わず複数物件まとめてのご案内も承ります!
初期費用の分割(月々3回払いまで手数料無料)・クレジットカード払いなど何でもご相談下さい!リアルタイム物件情報はホームページをぜひご覧ください!物件詳細やご見学等はお気軽にご相談下さいませ★毎日新規物件50件以上登録しております★リアルタイム物件情報は当社ホームページへ!入居日・初期費用等の交渉事は全て当社にお任せ下さい!お客様のご希望にそって全力でお部屋探しのサポートをさせて頂きます!当店では、シングル(一人暮らし)・ファミリー(家族)賃貸物件を中心にお部屋探しをサポート致します!その他非公開物件の情報提供も致します!

近隣の物件

  1. グリーンシーダ

    豊島区西池袋2丁目

    1K (27.08㎡)

    9.3万円

  2. スカイコート護国寺

    豊島区雑司が谷1丁目

    1K (20.77㎡)

    8.29万円

  3. 良栄住宅

    豊島区西巣鴨2丁目

    1K (21.83㎡)

    6.8万円

  4. La Douceur巣鴨

    豊島区巣鴨3丁目

    1LDK (34.75㎡)

    14.5万円

北大塚三丁目貸家

北大塚三丁目貸家

18万円

-

3LDK+S(納戸)(60.86㎡)

お気軽にお問い合わせください

無料お問い合わせ

With Home(ウィズホーム)

03-6912-2377

10:00~19:00

(休:毎週火曜日・水曜日(GW・夏季休暇・年末年始休暇))